3400 S ATLANTIC AVENUE 3400 & 3404DAYTONA BEACH, FL 32118




Mortgage Calculator
Monthly Payment (Est.)
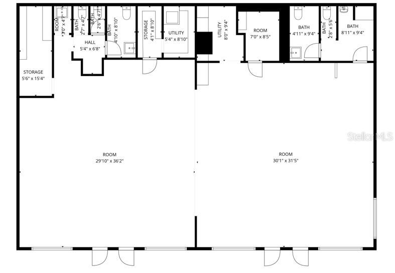
$228Rare opportunity to lease a commercial space just steps from the Atlantic Ocean in the heart of Daytona Beach Shores. Located along S Atlantic Avenue, double unit (3400 & 3404) this ocean-adjacent property offers exceptional visibility in one of the area’s most desirable coastal corridors, surrounded by beachfront condominiums, resorts, hotels, and high-density residential communities. Base rent is $20 SFT and CAM $2.50 Totaling $4,687.50 monthly. Tenant pays water and power. This highly versatile space is well suited for retail, professional office, medical, boutique, wellness, or service-oriented businesses (subject to zoning and city approval). The location benefits from strong daily traffic, consistent year-round activity, and a built-in customer base of both residents and visitors enjoying the beachside lifestyle. Property Highlights: Positioned on high-visibility S Atlantic Ave Strong foot and vehicle traffic Surrounded by beachfront condos, hotels, and short-term rentals Excellent exposure and signage potential Flexible layout for multiple commercial uses Ideal for businesses seeking a coastal presence in a high-demand beachside community. Don’t miss this opportunity to establish your business in one of Daytona Beach Shores’ most desirable commercial locations.
| 2 weeks ago | Listing updated with changes from the MLS® | |
| 3 weeks ago | Price changed to $50,000 | |
| 3 weeks ago | Listing first seen on site |
Listing information is provided by Participants of the Stellar MLS. IDX information is provided exclusively for personal, non-commercial use, and may not be used for any purpose other than to identify prospective properties consumers may be interested in purchasing. Information is deemed reliable but not guaranteed. Properties displayed may be listed or sold by various participants in the MLS Copyright 2026, Stellar MLS.
Last checked: 2026-02-21 08:38 AM EST

Did you know? You can invite friends and family to your search. They can join your search, rate and discuss listings with you.