Save
Ask
Tour
Hide
$2,295,000
107 Days On Site
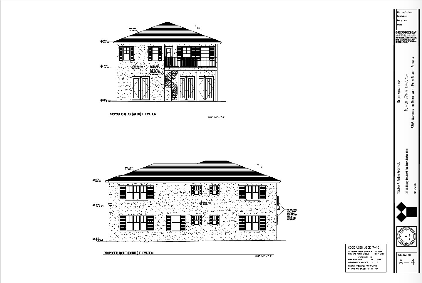
3308 Washington RoadWest Palm Beach, FL 33405
For Sale|Unimproved Land|Active
0
Beds
0
Total Baths
Subdivision:
SOUTHLAND PARK
County:
Palm Beach
Call Now: 561-351-5096
Is this the listing for you? We can help make it yours.
561-351-5096



Save
Ask
Tour
Hide
Mortgage Calculator
Monthly Payment (Est.)
$10,471Calculator powered by Showcase IDX, a Constellation1 Company. Copyright ©2026 Information is deemed reliable but not guaranteed.
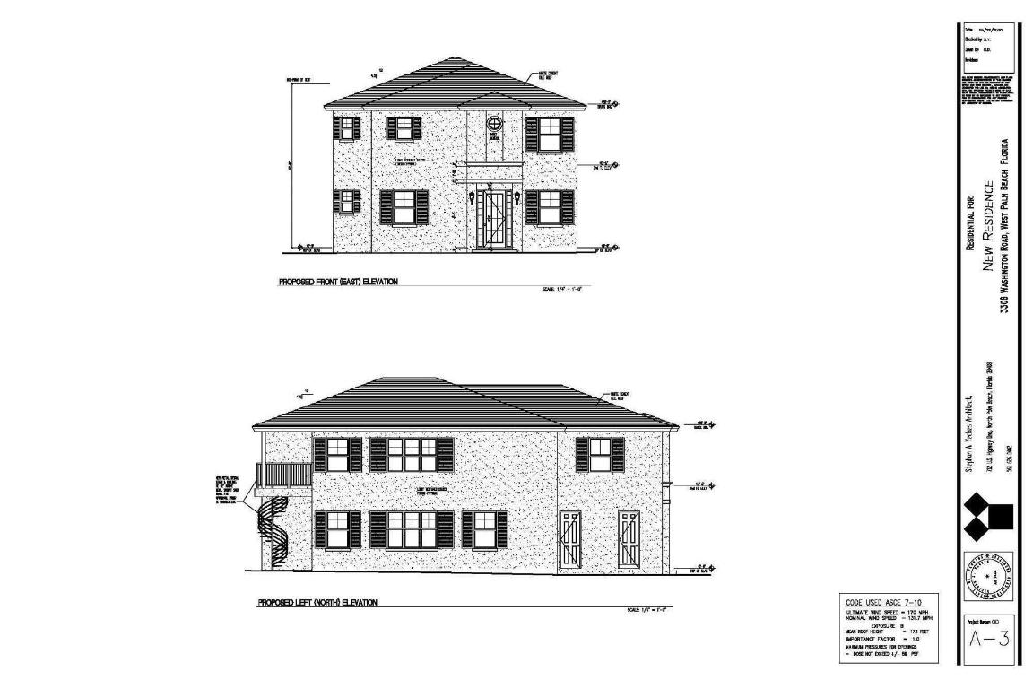
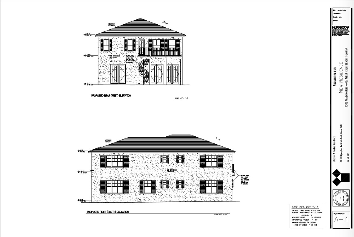
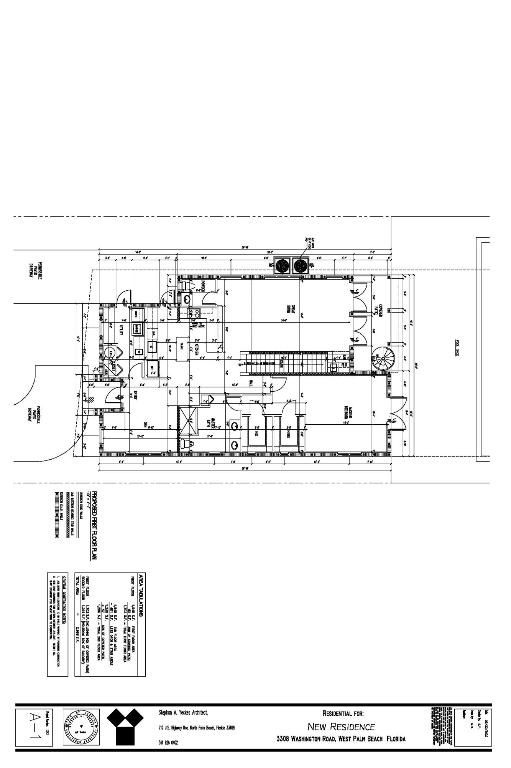
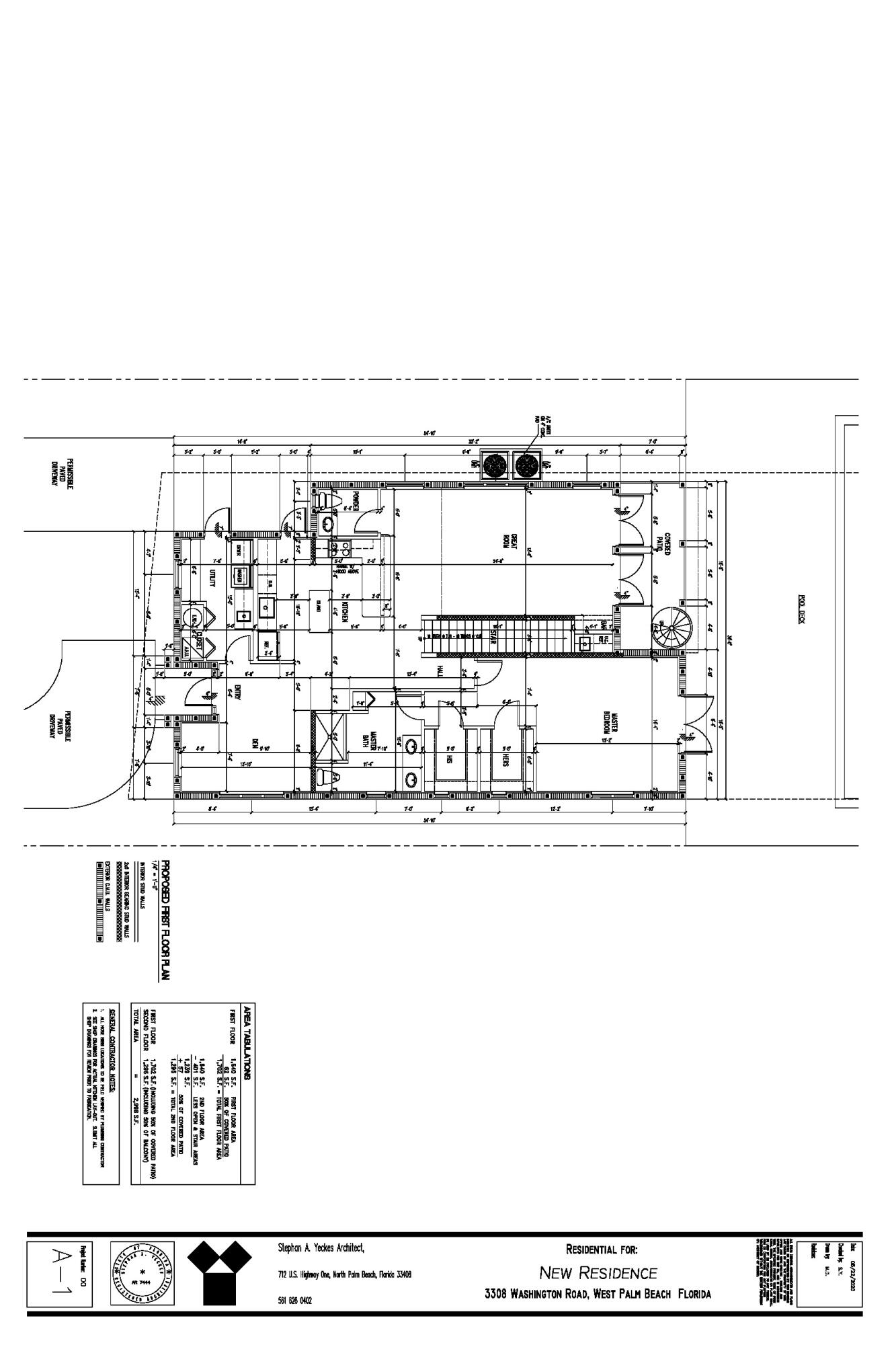
Land With Approved Plans! Take down this 1926 non- contributing home and build your dream house. Plans are available for a 3000 sq ft, 4 bedroom 4-1/2 bath main home.
Save
Ask
Tour
Hide
Listing Snapshot
Price
$2,295,000
Days On Site
107 Days
Bedrooms
N/A
Inside Area (SqFt)
N/A
Total Baths
N/A
Full Baths
N/A
Partial Baths
N/A
Lot Size
0.14 Acres
Year Built
N/A
MLS® Number
R11133400
Status
Active
Property Tax
$29,126
HOA/Condo/Coop Fees
N/A
Sq Ft Source
N/A
Friends & Family
Recent Activity
| 3 months ago | Status changed to Active | |
| 3 months ago | Listing updated with changes from the MLS® | |
| 4 months ago | Listing first seen on site |
General Features
Acres
0.14
Additional Property Use
Single FamilyUnimproved
Direction Faces
West
Property Sub Type
Unimproved Land
Utilities
Electricity AvailableWater Available
Water Source
Public
Zoning
SF14(c
Save
Ask
Tour
Hide
Exterior Features
Lot Features
City Lot
View
Garden
Waterview
Garden
Community Features
Association Amenities
None
Community Features
Sidewalks
Financing Terms Available
Cash
MLS Area
5440
Roads
Paved
Listing courtesy of Douglas Elliman
All listings featuring the BMLS logo are provided by BeachesMLS, Inc. This information is not verified for authenticity or accuracy and is not guaranteed. Copyright © 2026 BeachesMLS, Inc. (a Flex MLS feed)
Last checked: 2026-01-31 01:31 PM UTC
All listings featuring the BMLS logo are provided by BeachesMLS, Inc. This information is not verified for authenticity or accuracy and is not guaranteed. Copyright © 2026 BeachesMLS, Inc. (a Flex MLS feed)
Last checked: 2026-01-31 01:31 PM UTC
Neighborhood & Commute
Source: Walkscore
Save
Ask
Tour
Hide

Did you know? You can invite friends and family to your search. They can join your search, rate and discuss listings with you.